PropertyNoob

The key to finding your perfect property should be in your hands. We empower you with valuable insights & tools, and let you be in control of your home search.

Related

Social Channels

Parksuites

Showflat | Price List | Brochure

LaunchesD10 ≫ Parksuites

Launch Info

Address 22 Holland Grove Rd
District D10
Developer Far East Organization
Tenure 110y leasehold
TOP 2023 Q1
Status Construction Completed
Site Area -
No. of units 119

Showflat Info

Launch Date Nov 2018
Showflat Address  
Opening Hours Please book an appointment to visit

Price List

There are 6 units available (94% sold). The cheapest units currently available for each floor plan type are:

Type Unit Price Area PSF
1 Bedroom #02-38 $1,369,450 592 $2,313
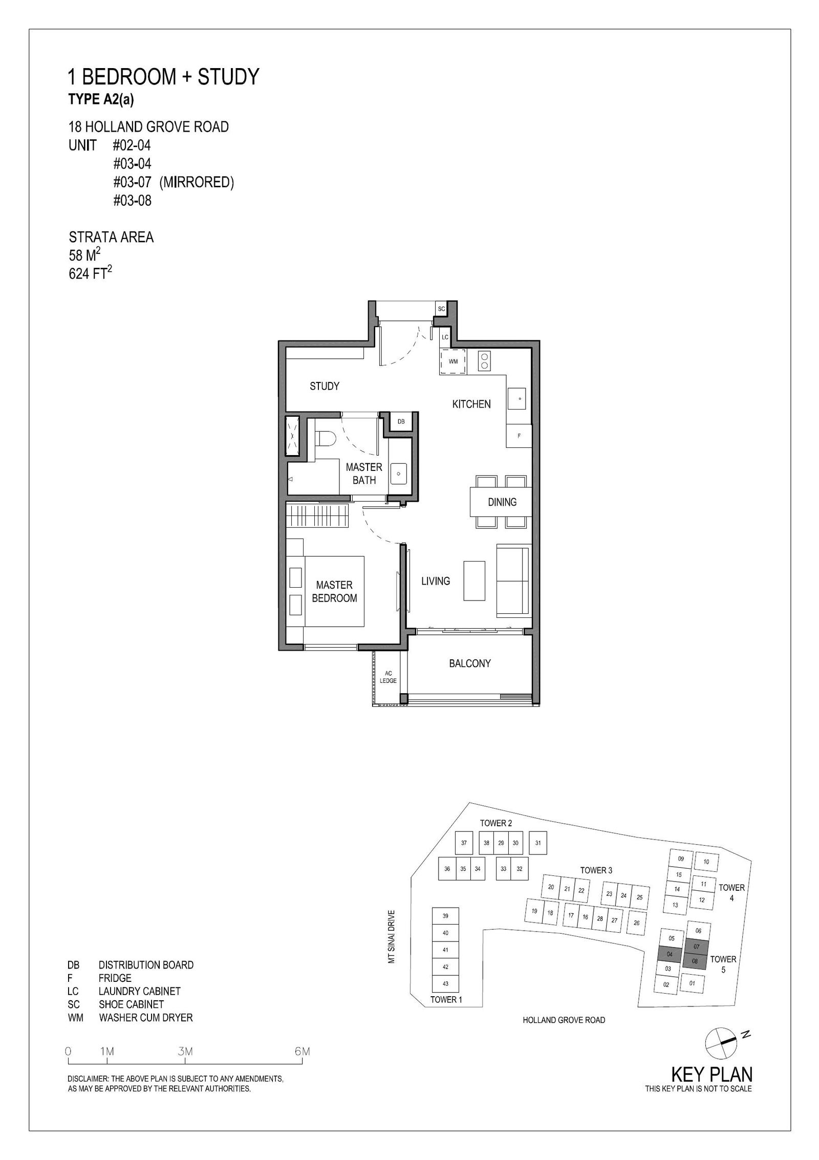
1 Bedroom + Study #03-04 $1,522,230 624 $2,439
2 Bedroom SOLD OUT - - -
2 Bedroom + Study SOLD OUT - - -
2 Bedroom Dual-Key #04-29 $2,576,207 1,098 $2,346
3 Bedroom Dual-Key #04-32 $3,171,595 1,421 $2,232
4 Bedroom Triplex #03-41 $7,327,629 3,068 $2,388

👉🏻 View all units and prices
👉🏻 View past sale transactions

For the latest prices, discounts, available units and floor plans, please contact us.

Brochure

https://img.huttons.sg/upload/broke/2bb941dfc39445998b241147df411af3/cd4698ee608646f28762fcb8bf3b6e42/siteplanImg/bf4662a908814f3398a102e2e4d12773.jpg
🔍
https://img.huttons.sg/upload/broke/2bb941dfc39445998b241147df411af3/cd4698ee608646f28762fcb8bf3b6e42/siteplanImg/43dd971cad434b749af23f69d1c94b0e.jpg
🔍