PropertyNoob

The key to finding your perfect property should be in your hands. We empower you with valuable insights & tools, and let you be in control of your home search.

Related

Social Channels

Narra Residences

Showflat | Price List | Brochure

LaunchesD23 ≫ Narra Residences

Launch Info

Address 50 Dairy Farm Walk S(679268)
District D23
Developer Dairy Farm Walk JV Development Pte Ltd
Tenure 99y leasehold
TOP 2029 Q1
Status Under Construction
Site Area 21,881 sqm
No. of units 544

Showflat Info

Launch Date Jan 2026
Showflat Address Right next to actual site
Opening Hours Please book an appointment to visit

Price List

There are 388 units available (28% sold). The cheapest units currently available for each floor plan type are:

Type Unit Price Area PSF
1 BEDROOM with STUDY SOLD OUT - - -
2 BEDROOM COMPACT #02-35 $1,227,000 560 $2,191
2 BEDROOM PREMIUM #07-43 $1,404,000 646 $2,173
2 BEDROOM with HS #01-02 $1,416,000 700 $2,023
2 BEDROOM with HS & STUDY #01-04 $1,487,000 721 $2,062
2 BEDROOM with STUDY #02-39 $1,500,000 721 $2,080
3 BEDROOM COMPACT #16-36 $1,854,000 818 $2,267
3 BEDROOM FLEXI #02-41 $1,895,000 872 $2,173
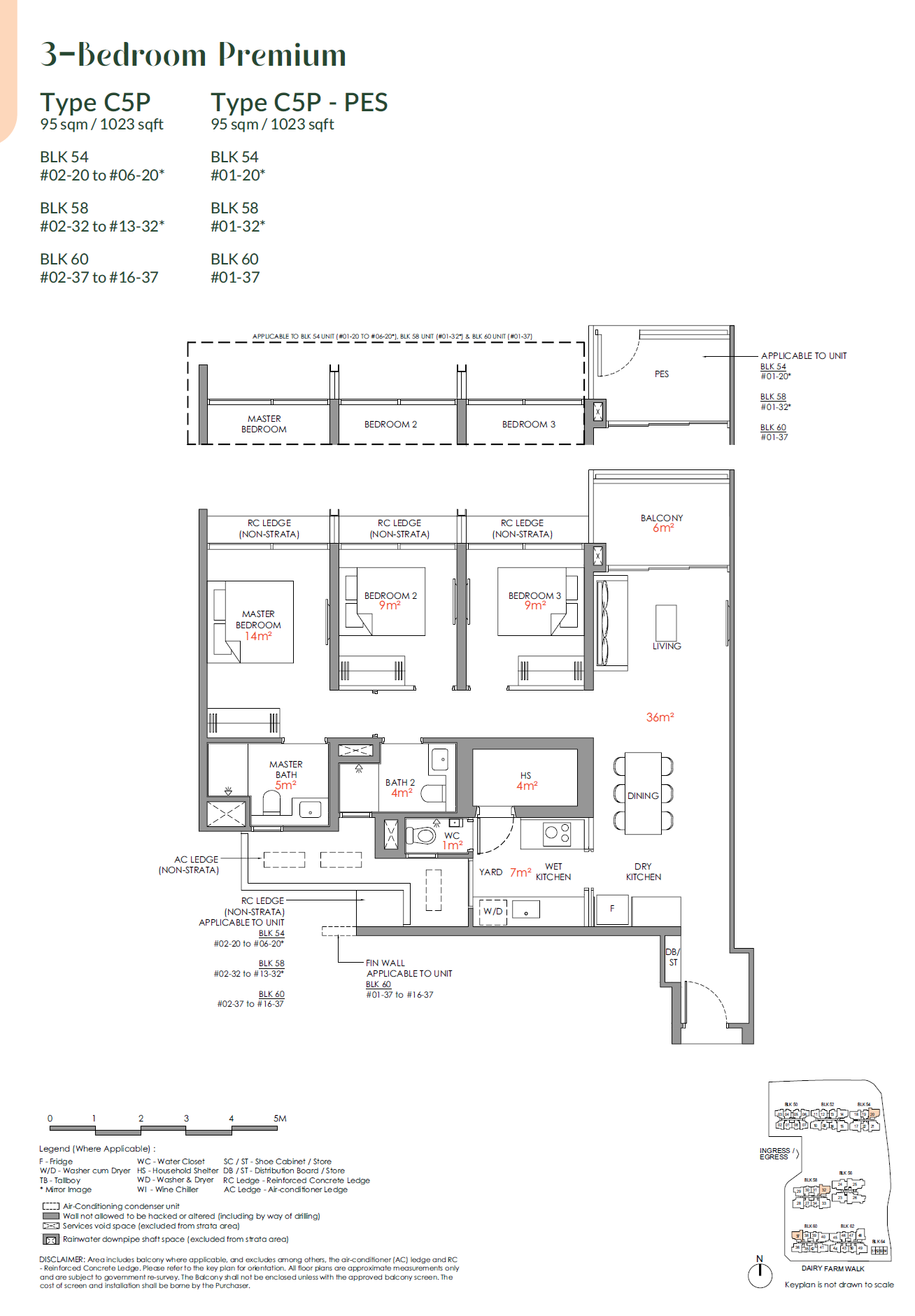
3 BEDROOM PREMIUM #01-20 $2,067,000 1,023 $2,021
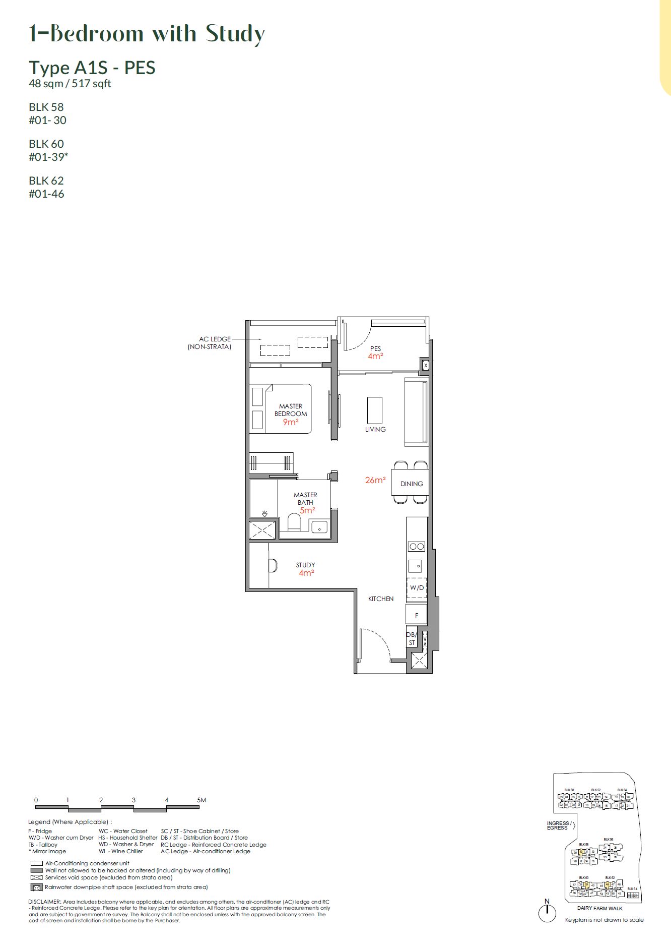
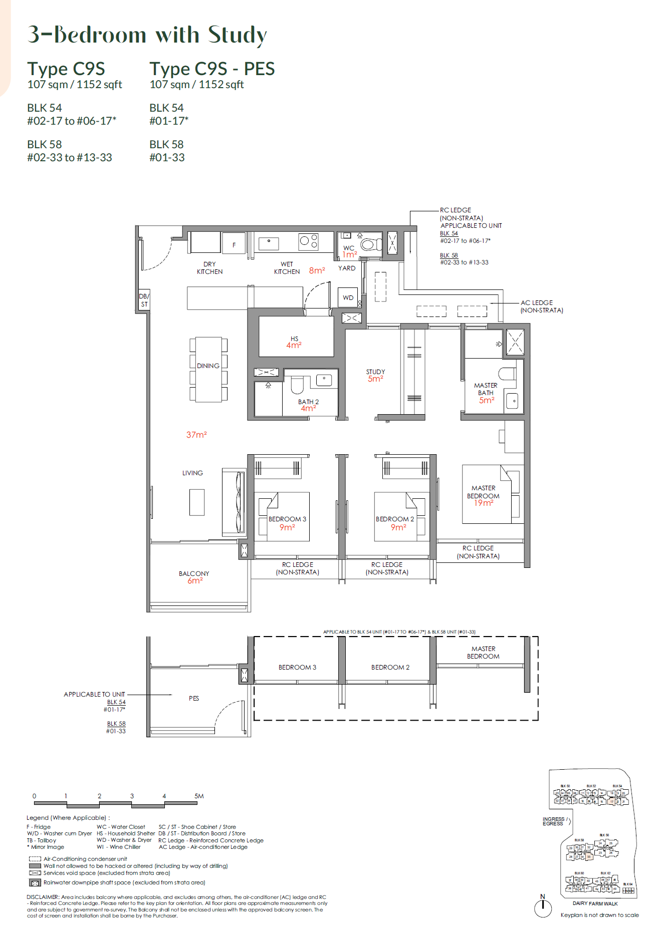
3 BEDROOM with STUDY #01-33 $2,490,000 1,152 $2,161
4 BEDROOM COMPACT #01-49 $2,448,000 1,152 $2,125
4 BEDROOM PREMIUM #01-23 $3,181,000 1,378 $2,308
5 BEDROOM with PRIVATE LIFT #01-26 $3,888,000 1,658 $2,345
Shop SOLD OUT - - -

👉🏻 View all units and prices

For the latest prices, discounts, available units and floor plans, please contact us.

Brochure

https://img.huttons.sg/upload/broke/1557b87be48b40c491095353fd85307c/030fee210b074a86a512f1f6cfaf62b6/siteplanImg/20251209/Site_Plan.png
🔍
https://img.huttons.sg/upload/broke/1557b87be48b40c491095353fd85307c/030fee210b074a86a512f1f6cfaf62b6/siteplanImg/20260116/Elevation_Chart_3.png
🔍
https://img.huttons.sg/upload/broke/d379d488126c4abf9505367876588b57/030fee210b074a86a512f1f6cfaf62b6/imgs/20251129/Narra_Residences_Image_5.jpg
🔍
https://img.huttons.sg/upload/broke/d379d488126c4abf9505367876588b57/030fee210b074a86a512f1f6cfaf62b6/imgs/20251031/Narra_Logo-Positive-CHI.jpg
🔍
https://img.huttons.sg/upload/broke/d379d488126c4abf9505367876588b57/030fee210b074a86a512f1f6cfaf62b6/imgs/20251129/Narra_Residences_Image_12.jpg
🔍
https://img.huttons.sg/upload/broke/d379d488126c4abf9505367876588b57/030fee210b074a86a512f1f6cfaf62b6/imgs/20251129/Narra_Residences_Image_11.jpg
🔍
https://img.huttons.sg/upload/broke/d379d488126c4abf9505367876588b57/030fee210b074a86a512f1f6cfaf62b6/imgs/20251129/Narra_Residences_Image_6.jpg
🔍
https://img.huttons.sg/upload/broke/d379d488126c4abf9505367876588b57/030fee210b074a86a512f1f6cfaf62b6/imgs/20251129/Narra_Residences_Image_9.jpg
🔍
https://img.huttons.sg/upload/broke/d379d488126c4abf9505367876588b57/030fee210b074a86a512f1f6cfaf62b6/imgs/20251129/Narra_Residences_Image_2.jpg
🔍
https://img.huttons.sg/upload/broke/d379d488126c4abf9505367876588b57/030fee210b074a86a512f1f6cfaf62b6/imgs/20251129/Narra_Residences_Image_3.jpg
🔍
https://img.huttons.sg/upload/broke/d379d488126c4abf9505367876588b57/030fee210b074a86a512f1f6cfaf62b6/imgs/20251129/Narra_Residences_Image_7.jpg
🔍
https://img.huttons.sg/upload/broke/d379d488126c4abf9505367876588b57/030fee210b074a86a512f1f6cfaf62b6/imgs/20251129/Narra_Residences_Image_1.jpg
🔍
https://img.huttons.sg/upload/broke/d379d488126c4abf9505367876588b57/030fee210b074a86a512f1f6cfaf62b6/imgs/20251129/Narra_Residences_Image_13.jpg
🔍
https://img.huttons.sg/upload/broke/d379d488126c4abf9505367876588b57/030fee210b074a86a512f1f6cfaf62b6/imgs/20251129/Narra_Residences_Image_4.jpg
🔍
https://img.huttons.sg/upload/broke/d379d488126c4abf9505367876588b57/030fee210b074a86a512f1f6cfaf62b6/imgs/20251108/WhatsApp_Image_2025-11-08_at_10.18.39.jpeg
🔍
https://img.huttons.sg/upload/broke/d379d488126c4abf9505367876588b57/030fee210b074a86a512f1f6cfaf62b6/imgs/20251129/Narra_Residences_Image_10.jpg
🔍
https://img.huttons.sg/upload/broke/d379d488126c4abf9505367876588b57/030fee210b074a86a512f1f6cfaf62b6/imgs/20251129/Narra_Residences_Image_8.jpg
🔍