PropertyNoob

The key to finding your perfect property should be in your hands. We empower you with valuable insights & tools, and let you be in control of your home search.

Related

Social Channels

Jalan Loyang Besar GLS

Showflat | Price List | Brochure

LaunchesD18 ≫ Jalan Loyang Besar GLS

Launch Info

Address Jalan Loyang Besar
District D18
Developer Pasir Ris Development Pte Ltd
Tenure 99y leasehold
TOP  
Status Under Construction
Site Area 28,406 sqm
No. of units 748

Showflat Info

Launch Date Dec 2025
Showflat Address SF Location(Ex Sky Eden)
Opening Hours Please book an appointment to visit

Price List

There are 146 units available (80% sold). The cheapest units currently available for each floor plan type are:

Type Unit Price Area PSF
3 Bedroom Deluxe #01-12 $1,535,000 872 $1,760
3 Bedroom Premium #02-56 $1,566,000 915 $1,711
3 Bedroom Premium + Study #02-51 $1,575,000 915 $1,721
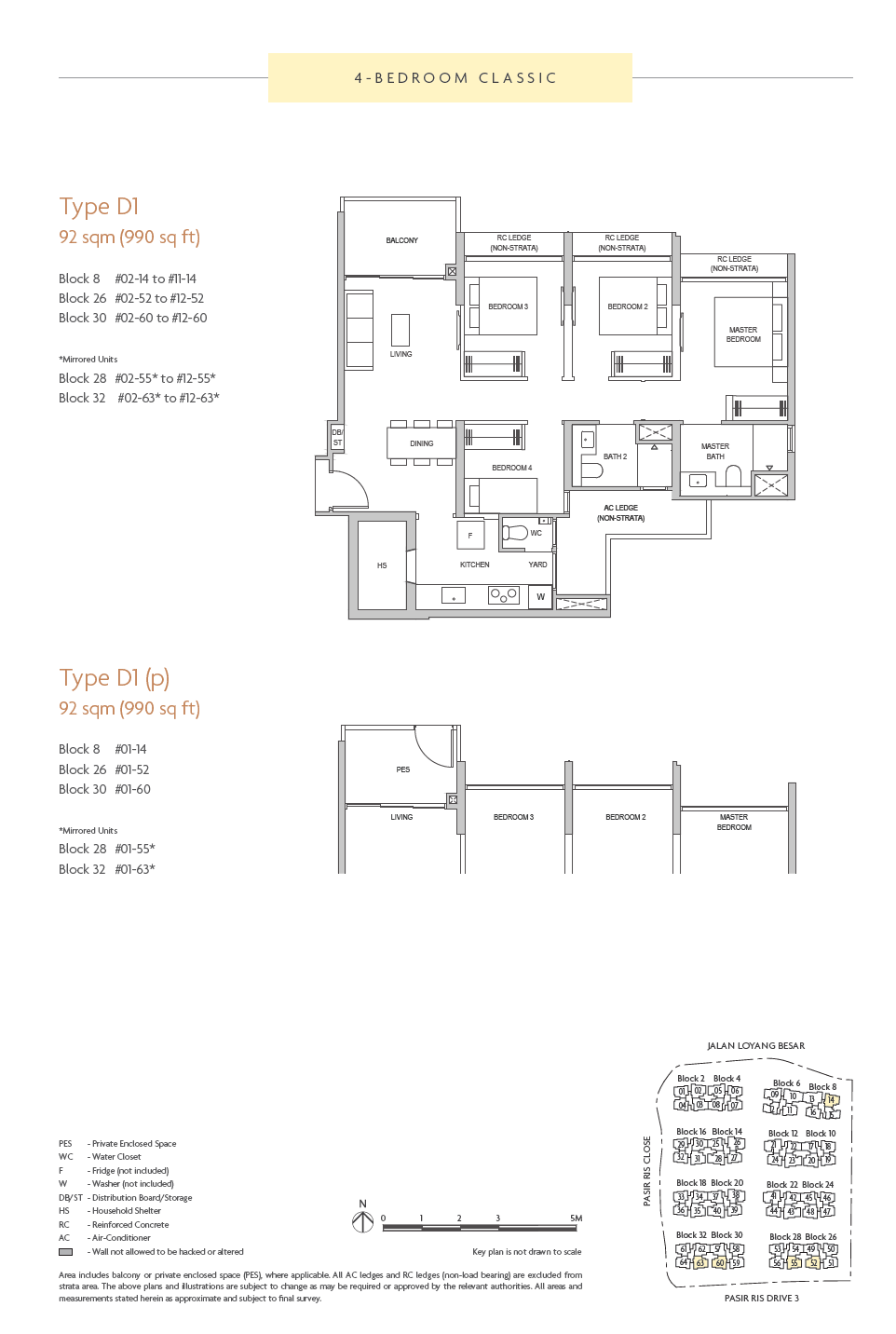
4 Bedroom Classic SOLD OUT - - -
4 Bedroom Deluxe #11-45 $1,879,000 1,012 $1,857
4 Bedroom Premium SOLD OUT - - -
4 Bedroom Premium + Flexi SOLD OUT - - -
4 Bedroom Premium + Study SOLD OUT - - -
5 Bedroom Premium SOLD OUT - - -

👉🏻 View all units and prices

For the latest prices, discounts, available units and floor plans, please contact us.

Brochure

https://img.huttons.sg/upload/broke/de0b7f8e27dc4ad0a99ac8a53c792778/60dab94999134e819496275b30b239aa/imgs/20250407/7.png
🔍